Espace propriétaire
fr

Votre recherche

Exclusivité
Cachan (94230)

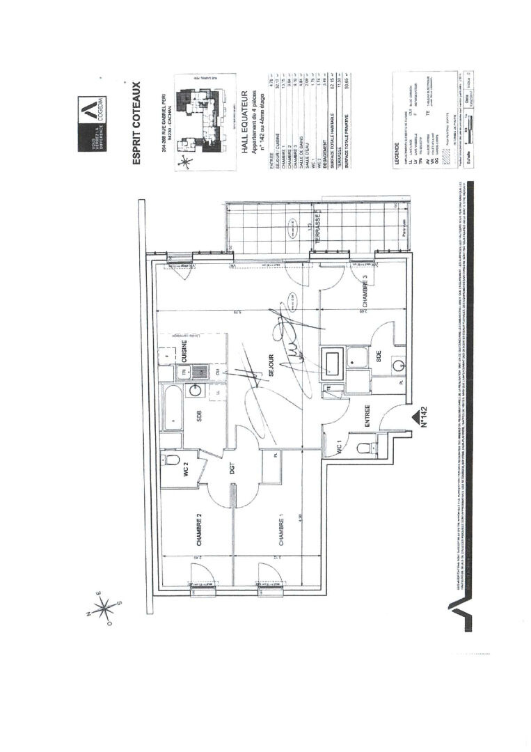
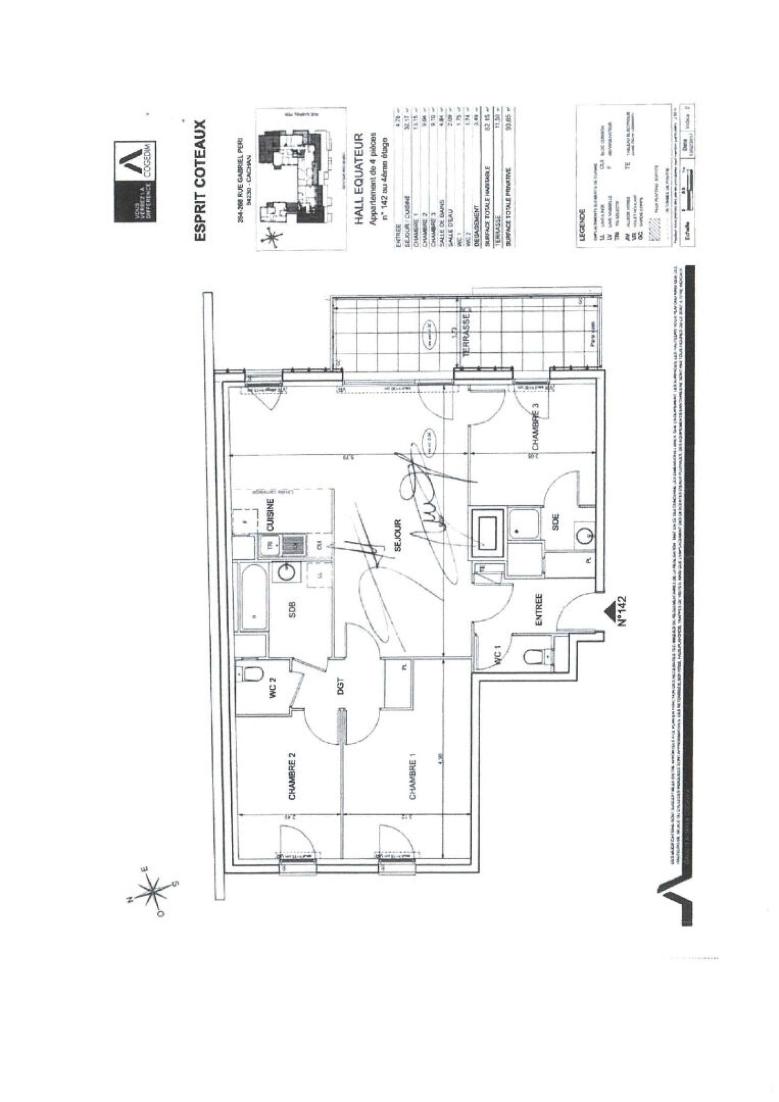
4 pièces - 82,15 m²

Appartement Cachan 4 pièce(s) 82.15 m2

1 674 € CC*
Ref : 783
Découvrir le bien
Découvrez ce magnifique appartement de type F4 de 82,15 m², situé au 4ème étage d'un immeuble en copropriété dédié à l'habitation.
L'entrée vous accueille avec des rangements pratiques, menant à un vaste séjour lumineux qui s'ouvre sur une terrasse de 11,50 m², idéale pour profiter de moments de détente en plein air. La cuisine ouverte, aménagée et équipée, s'intègre parfaitement à l'espace de vie.
L'appartement comprend également une suite parentale avec sa propre salle d'eau, offrant un espace privé confortable. Un dégagement, également doté de rangements, distribue deux autres chambres, parfaites pour une famille, ainsi qu'une salle de bains et un deuxième WC séparé. A cela s'ajoute une place de stationnement en sous-sol.
Ce logement combine parfaitement fonctionnalité et confort, dans un cadre agréable et convivial. Ne manquez pas l'opportunité de visiter ce bien exceptionnel !
TRAD_ZEPHYR_Caracteristique TRAD_ZEPHYR_Valeurs
Code postal 94230
Nombre de chambre(s) 3
Nombre de pièces 4
Meublé NON
Etage 4
Ascenseur OUI
TRAD_ZEPHYR_Caracteristique TRAD_ZEPHYR_Valeurs
Nb de salle de bains 1
Nb de salle d'eau 1
Cuisine Américaine
Type de cuisine Equipée
Balcon NON
Terrasse OUI
Année de construction 2019
TRAD_ZEPHYR_Caracteristique TRAD_ZEPHYR_Valeurs
Copropriété OUI
Quote Part annuelle des charges 0 €
TRAD_ZEPHYR_Caracteristique TRAD_ZEPHYR_Valeurs
Loyer CC* / mois 1 674 €
Honoraires TTC charge locataire 1 232,25 €
Dont état des lieux 246,45 €
Dépôt de garantie TTC 1 474 €
Charges locatives (Previsionnelles mensuelles les avec regularisation annuelle) 200 €
DPE GES
  • Commerces et santé
  • Loisirs
  • Ecoles
  • Transports
  • Pratique
Contacter pour ce bien
L'agence
Téléphone 0169787100
Adresse
44-46 rue de la république 91150 Étampes

* Champ obligatoire

Les informations recueillies sur ce formulaire sont enregistrées dans un fichier informatisé par La Boite Immo agissant comme Sous-traitant du traitement pour la gestion de la clientèle/prospects de l'Agence / du Réseau qui reste Responsable du Traitement de vos Données personnelles. La base légale du traitement repose sur l'intérêt légitime de l'Agence / du Réseau. Elles sont conservées jusqu'à demande de suppression et sont destinées à l'Agence / au Réseau. Conformément à la loi « informatique et libertés », vous disposez des droits d’accès, de rectification, d’effacement, d’opposition, de limitation et de portabilité de vos données. Vous pouvez retirer votre consentement à tout moment en contactant directement l’Agence / Le Réseau. Consultez le site https://cnil.fr/fr pour plus d’informations sur vos droits. Si vous estimez, après avoir contacté l'Agence / le Réseau, que vos droits « Informatique et Libertés » ne sont pas respectés, vous pouvez adresser une réclamation à la CNIL. Nous vous informons de l’existence de la liste d'opposition au démarchage téléphonique « Bloctel », sur laquelle vous pouvez vous inscrire ici : https://www.bloctel.gouv.fr Dans le cadre de la protection des Données personnelles, nous vous invitons à ne pas inscrire de Données sensibles dans le champ de saisie libre.
Ce site est protégé par reCAPTCHA, les Politiques de Confidentialité et les Conditions d'Utilisation de Google s'appliquent.

Découvrir nos outils